| Availability: | |
|---|---|
| Quantity: | |
The SQS100A-3 is a professional medium-to-heavy duty 4 ton telescopic boom truck mounted crane, engineered by Tengchang for heavy-lifting operations across construction, industrial, municipal, and logistics scenarios.
With a maximum lifting capacity of 4000kg, 10t·m rated lifting moment, and an ultra-compact 700mm installation footprint, this hydraulic truck crane delivers 360° full slewing, precise hydraulic control, and reliable long-term performance for global commercial clients. Designed for seamless integration with medium-duty trucks, it balances high power, space efficiency, and low maintenance costs, making it the ideal mobile lifting solution for contractors, fleet operators, and industrial procurement teams.
This truck mounted crane supports a maximum load of 4000kg, paired with a 10t·m rated lifting moment to maintain stable performance even under complex working conditions. It handles full-cycle medium-to-heavy lifting tasks from steel structure hoisting to heavy machinery loading, eliminating the need for multiple dedicated lifting equipment and cutting down overall project operation costs for construction teams and industrial buyers.
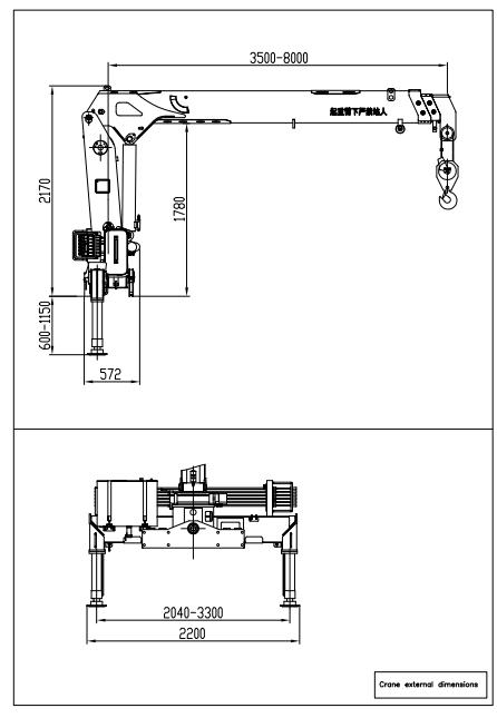
With a required installation space of only 700mm and a total crane weight of 1350kg, this unit can be seamlessly integrated with most mainstream medium-duty trucks without excessive chassis modification. The compact design simplifies the refit process, shortens the vehicle modification cycle, maximizes the effective payload of the truck, and significantly improves the operation efficiency of commercial fleets and logistics operators.
Equipped with a professional hydraulic system that delivers 32 L/min flow at 20 MPa rated pressure, paired with a 16 kW recommended power system, the crane achieves ultra-smooth, accurate, and energy-efficient lifting movements. The optimized hydraulic design reduces operation errors, improves on-site safety, lowers fuel consumption during continuous operation, and cuts long-term maintenance costs for commercial users with high-frequency lifting needs.
The unit supports unrestricted 360° full rotation, enabling all-direction load handling without repositioning the truck, perfectly adapting to narrow construction sites, closed factory workshops, busy urban roads, and compact logistics yards. This flexibility greatly reduces on-site preparation time, improves operation efficiency in limited spaces, and allows teams to complete more hoisting tasks in a single workday, boosting overall project productivity.
Fabricated with high-strength structural steel and precision manufacturing processes, the crane features a weather-resistant design that maintains stable and reliable operation in harsh outdoor conditions, from high-temperature construction sites to rainy municipal works. The heavy-duty build ensures an extra-long service life with minimal maintenance requirements, reduces unplanned equipment downtime, and maximizes the return on investment for commercial purchasers.
Core Parameter | Specification | Additional Parameter | Specification |
Maximum Lifting Weight | 4000kg (4 Ton) | Oil Tank Capacity | 60L |
Maximum Lifting Moment | 10t·m | Slewing Angle | 360° Full Rotation |
Recommended Power | 16 KW | Hydraulic Crane Weight | 1350kg |
Recommended Hydraulic Flow | 32 L/min | Installation Space Requirement | 700mm |
Rated Hydraulic Pressure | 20MPa | - | - |
Ideal for urban and mid-size construction sites, this truck mounted crane is widely used for hoisting steel structures, concrete prefabricated parts, construction equipment, and bulk building materials. Its compact design and 360° slewing capability enable flexible operation in narrow urban construction areas, while the weather-resistant build ensures stable performance in long-term outdoor construction projects, making it the preferred lifting solution for general contractors and engineering teams.
Designed for manufacturing plants, machinery workshops, and industrial production lines, the unit supports loading and unloading of heavy machinery, relocation of production equipment, and auxiliary work for assembly operations. The high-precision hydraulic system ensures smooth and steady movements, minimizing the risk of damage to high-value industrial equipment during handling, and improving the overall efficiency of factory material management and production line operations.
Perfect for freight yards, storage parks, and logistics companies, this mobile truck crane handles medium-to-heavy cargo loading, unloading, and stacking with high efficiency. Its vehicle-mounted design enables cross-yard and cross-regional mobile operations, eliminating the reliance on fixed gantry cranes, speeding up cargo turnover, and reducing the overall logistics operation costs for freight and warehousing operators.
Widely adopted by municipal engineering teams and utility service providers, the crane is the go-to solution for street light installation, traffic signal equipment erection, utility pole placement, and urban greening maintenance. Its compact body and flexible rotation minimize the impact on urban road traffic during operation, while the precise control ensures safe and efficient installation of municipal facilities in dense urban areas.
Before each operation, park the truck on firm, level ground and engage the parking brake. Inspect the surrounding area for obstacles, overhead power lines, and unstable ground surfaces, and maintain a minimum distance of 10 meters from high-voltage lines. Always confirm the load weight is within the crane’s rated capacity and lifting height limits, and ensure all control levers are in the neutral position before starting the system.
For safe and efficient operation, extend the outriggers fully and place support pads under each outrigger on soft ground, ensuring the truck is completely level to avoid tipping hazards. Operate one boom control handle at a time, never engage multiple handles simultaneously, and keep the boom path clear of personnel at all times. Lift loads slowly and steadily, avoid sudden movements or load swinging, and never leave a suspended load unattended.
To extend the service life of the crane, perform regular lubrication of pivot points, boom slides, and hydraulic cylinder pins before and after each work cycle. Check hydraulic oil levels daily, inspect hydraulic hoses for wear or damage, and tighten loose bolts in a timely manner. Only trained professional personnel should perform hydraulic system maintenance, and worn parts must be replaced immediately with original spare parts to ensure operation safety.
The SQS100A-3 4 ton truck mounted crane has a maximum lifting capacity of 4000kg (4 tons), with a rated lifting moment of 10t·m, delivering stable and reliable performance for medium-to-heavy lifting operations across multiple industries.
The SQS100A-3 has an ultra-compact installation space requirement of only 700mm, making it suitable for seamless integration with most mainstream medium-duty trucks without excessive chassis modification.
Yes, the SQS100A-3 is fabricated with high-strength weather-resistant steel, designed for reliable continuous operation in outdoor construction, municipal works, and other harsh working environments with variable weather conditions.
Yes, Tengchang provides full original spare parts supply, 24/7 professional technical guidance, and worldwide after-sales service for the SQS100A-3 truck crane, to minimize your equipment downtime and ensure long-term stable operation.